How DecorVista Manages Your Whole House Customization

Dear friend, Welcome!

 

This guide walks you through how we manage a typical whole-house customization project, using a recent New York home as an example. We aim for a transparent, efficient, and high-quality process from start to finish.

 

Let’s begin!

1. Design: Turning Ideas into Reality

It all starts with your space and your vision.

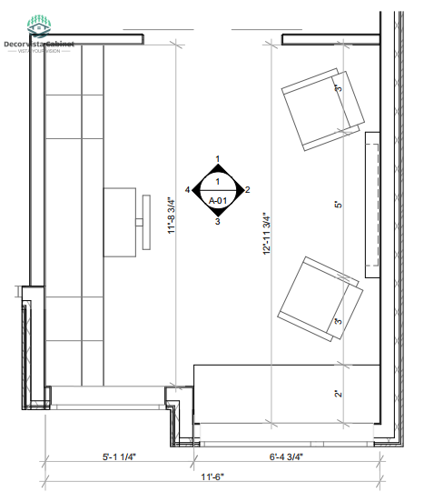
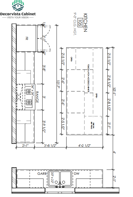
What We Need from You: Room dimensions or a basic layout. Architectural drawings are ideal, but a simple hand-drawn sketch with measurements works too! We can then help you optimize the space.

What We Do: Our design team creates detailed CAD drawings based on your input. We work closely with you through discussions and revisions until the design is perfect.

What You Get: Finalized layout plans confirming sizes, appliance placement, door styles, and more

2. Order & Pre-Production:

Precision Planning Once you approve the design and quote, we move forward.

Deposit & Detailed Drawings: We request a deposit and begin creating detailed manufacturing drawings. For complex pieces, we provide side views and specific plans to ensure accuracy.

Final Approval: After your final sign-off, production begins.

3. Transparent Process:

You won’t be left in the dark. We provide regular updates with photos and videos from our factory, so you can see your project taking shape.

4. Quality Inspection:

Ensuring Perfection Quality is our top priority.

Pre-Shipment Assembly: We assemble the cabinets in our factory to inspect every panel and component. Live Video Call Inspection (Optional) 

Zero Defects Guarantee: If any issues are found (scratches, size discrepancies, etc.), we repair or remake the item immediately.

5. Delivery Preparation:

Safe and Organized Shipping:

 We ensure your products arrive safely and are easy to identify. 

Secure Packaging: 

Cabinets: Packed in carton boxes with soft protective film, thick cardboard, and strong edge guards. 

Glass Doors & Countertops: Packed in reinforced wooden crates with foam padding.

Clear labeling: every cabinet and component is clearly marked with its location (e.g., “Kitchen Wall Cabinet #8”), and different rooms are distinguished by different color-coded label papers. 

This makes installation much faster and easier.

6. Additional Services:

Beyond Cabinets We’re your single point of contact for a smoother project. 

Product Sourcing: We can help you source windows, lighting, and other items. 

Shipping Consolidation: We can efficiently organize the container loading. If you’ve bought items from other suppliers, we can help consolidate everything into one shipment.

Why Choose DecorVista?

  • Full Customization: We bring your exact vision to life.

  • Quality Assurance: Rigorous in-house checks ensure you receive perfect products.

  • Competitive & Transparent Pricing: No hidden fees.

  • End-to-End Service: We manage your project from the first sketch to final delivery.

  • Long-Term Partnership: We build relationships, not just one-time orders.

Our Commitment to You:

We believe every detail matters. Our goal is to deliver a beautiful, functional home that exceeds your expectations.

Ready to Start Your Project?

Contact us today to discuss your ideas and get a free, no-obligation quote! We’re here to answer all your questions.

CONTACT
Hangzhou DecorVista Cabinet
Whatsapp/Phone: 86-158-6813-1904
Email: decorvistacabinet@gmail.com